АльмСтрой Воронеж АльмСтрой Воронеж

Коттедж с мансардой "Киржач"

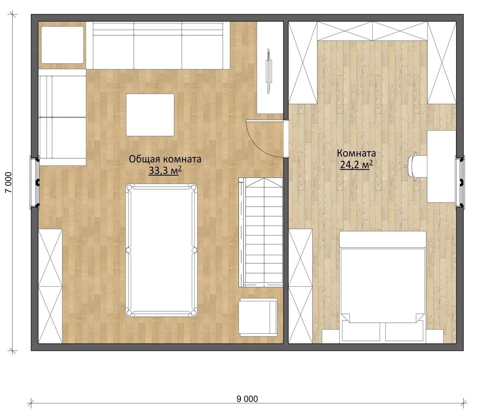
  • 126 м²
  • 5 комн.
  • 2 этаж.
  • 7×9
ОТ 1 724 310 ₽

Что включено в стоимость

Сборка на участке Включена
Основание дома Брус 150×150 по периметру и в одном направлении
Лаги пола Из доски 40×100 мм с расстоянием между лагами 590 мм
Черновой пол Из доски 20-25 мм разряжённый второй сорт
Пол предчистовой Шпунтованная доска пола 21 мм камерной сушки
Высота потолков 1 этаж - 2.2 м. 2 этаж - 2.1 м.
Силовой каркас дома Каркас наружных и внутренних стен из доски 40×50 мм, лаги пола перекрытия первого этажа из доски 40×50 мм
Паро-ветроизоляция Входит (нахлёст 10-15 см без проклеивания скотчем)
Отделка стен снаружи Евровагонка класс А и В камерной сушки
Отделка стен внутри Евровагонка класс А и В камерной сушки
Кровля Кровельное оцинкованное железо С8
Межэтажная лестница Деревянная, из обрезной доски
Окна Окно 500×500 (поворотное) 1 шт., окна 1000×1200 (поворотное) 8 шт., ПВХ однокамерные
Двери межкомнатные Деревянные филенчатые
Дверь входа в дом Деревянная филенчатая
Терраса Оплачивается отдельно
Крыльцо Оплачивается отдельно

Что включено в стоимость

Проект и смета

Планировки, узлы, спецификации и фиксированная смета перед стартом работ.

Материалы и логистика

Закупка, доставка, хранение и подъём материалов на объект.

Фиксированная стоимость по договору

Цена, указанная в договоре фиксируется, и не меняется.

Частые вопросы по проекту

Можно ли изменить планировку?

Да, адаптируем под ваши сценарии: перенос перегородок, окна, террасы и пр.

Какой тип фундамента выбрать?

После осмотра участка инженер предложит оптимум: винтовые сваи, МЗЛФ или УШП.

Подходит ли дом для ПМЖ?

Да. Дом рассчитан на круглогодичное проживание и соответствует нормам теплосбережения.

Похожие проекты

Коттедж с мансардой "Феникс"

Коттедж с мансардой "Феникс"

Светлая гостиная с панорамными окнами

  • 180 м²
  • 2 этаж.
  • 4 комн.
ОТ 2 000 000 ₽
Подробнее
Коттедж с мансардой "Киров"

Коттедж с мансардой "Киров"

С Мансардой
  • 129 м²
  • 2 этаж.
  • 4 комн.
ОТ 1 444 900 ₽
Подробнее
Одноэтажный коттедж "Барич"

Одноэтажный коттедж "Барич"

  • 120 м²
  • 1 этаж.
  • 2 комн.
ОТ 1 560 000 ₽
Подробнее
Нужна консультация по проекту?
Оставьте заявку — перезвоним в рабочее время.